33, Oak Road, Belleville South, Argyle Municipal District, Yarmouth County, Nova Scotia, B0W 3M0, Canada
For Sale, New! $425,000.00 - Bungalow
Looking for peaceful living with space to enjoy both inside and out?
This beautiful 3 bedroom, 2 bath bungalow in Belleville South could be exactly what you’ve been waiting for. Tucked away on a quiet road, this home offers the perfect balance of privacy and convenience and is located just 5 minutes from Tusket and only 12 minutes from Yarmouth.
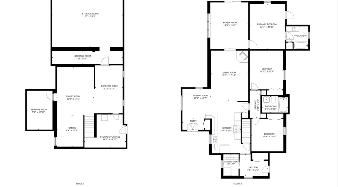
Step inside and you’ll find a warm, welcoming layout featuring a beautiful kitchen and dining area that opens to the living room, making it the perfect place for family gatherings or entertaining friends. The recently renovated ensuite bathroom adds a fresh modern touch to the primary bedroom, while the main floor laundry provides everyday convenience. The lower level offers plenty of additional living space including a family room, office, gym area, and lots of storage, giving you flexibility for work, hobbies, or relaxing. Comfort is covered year round with two heat pumps for efficient heating and cooling, along with a cozy wood stove that adds warmth and charm during the cooler months.
Outside, the property continues to impress with a two car garage, above-ground swimming pool, and storage shed. One of the property’s most charming features is the grapevines growing along the rock wall, adding character and a touch of natural beauty to the yard.
Note
All listings are MLS® unless otherwise noted. This advertisement is not intended to solicit anyone currently under contract with another brokerage. MLS® and REALTOR® are registered trademarks owned by the Canadian Real Estate Association.























